• КАТАЛОГ
  • Мембранный клапан фланцевый SD41

    Ду

    15~600 (1/2"~24")

    Ру

    0.6~1.6 (Class150)

    Рабочая температура

    -46°C~180°C

    Присоединение

    Фланцевое

    Направление установки

    Двустороннее

    Конструкция

    GB/T12239, BS5156

    Строительная длина

    GB/T12221, BS5156, ISO5752, EN558, DIN3202

    Соединения к трубе

    GB/T9113, ASME B16.5, EN1092, GOST12820, GOST33259, DIN2501, ISO2084

    Соединения к приводу

    ISO5211, GOST55510

    Инспекция

    GB/T13927, ISO5028, API598, JB/T9092, BS5156

    Корпус

    GGG40, WCB, CF8, CF8M

    Диафрагма

    11R, NR, NBR, EPDM, CR, FPM, FEP, PFA

    Шток

    420, F6a, 304, 316

    Seat Materials

    Седло

    Особенности & Преимущества

    Мембранный клапан фланцевый SD41 обладает небольшим сопротивлением текучей среде и может использоваться в среде, содержащей твердые взвешенные вещества, агрессивные и вязкие взвеси. Поскольку среда контактирует только с корпусом и мембраной, сальниковая набивка отсутствует, а штоковая часть не протекает и не подвергается коррозии.

    Маховик из ковкого чугуна более долговечен. Благодаря правильному размеру вращение маховика экономит трудозатраты.

    Втулка штока служит опорой для маховика и заставляет шток вращаться по внутренней резьбе, поднимая диск. В зависимости от требований можно выбрать бронзу или чугун.

    В зависимости от условий работы могут быть выбраны различные материалы. Основными критериями являются твердость и коррозионная стойкость.

    Она разделяет внутреннюю полость нижней части корпуса и верхней крышки, что позволяет защитить шток, крышку и другие детали, расположенные над диафрагмой, от коррозии в среде. В зависимости от среды можно выбрать фторопласт и резину.

    Его простая конструкция, хорошая герметичность, коррозионная стойкость и небольшое сопротивление текучей среде делают его более широко используемым в средах с низким давлением и высокой коррозионной активностью, и даже в средах, содержащих взвешенные вещества. Корпус может быть отлит или сварен, а габаритные размеры могут быть изменены в зависимости от требований.

    Отраслевые варианты

    MaterialsCharacteristicsLow Temp. ℃High Temp. ℃Recommended ℃
    NRHigh elasticity-2085-5~70
    NBROil resistivity-30100-15~90
    EPDMAging resistance, ozone resistance, corrosion resistance-40125-25~110
    HT EPDMAging resistance, ozone resistance, corrosion resistance, heat resistance-40150-25~135
    Wear-resistantExcellent traction performance and wear resistance-30100-15~100
    CROil, heat, flame, sunlight, ozone, acid and alkali resistance-30125-15~100
    HypalonOxidation resistance, resistance to winding and cracking-40120-25~110
    FPM (Viton)Chemical and most oils resistance, (except ketones & esters)-20200-5~150
    MVQ (Silicon)High and low temperature resistance, oil, corrosion resistance-55200-30~180

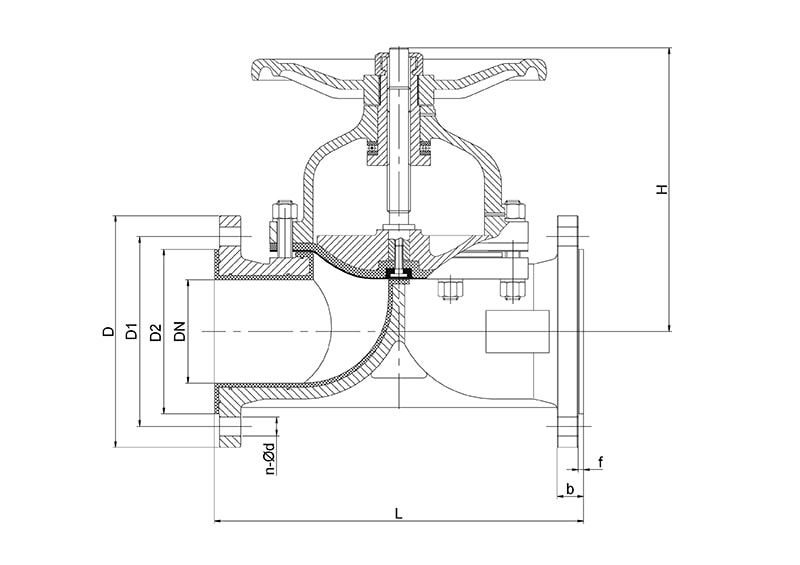
    Размеры

    Мембранный клапан фланцевый SD41's Drawing

    GB/T 9113 PN16

    DNLDD1D2bfn-Φd
    502101651251021634-18
    652501851451221838-18
    803002001601382038-18
    1003502201801582038-18
    1254002502101882238-18
    1504602852402122438-22
    20057034029526826312-22
    25068040535532030312-26
    30079046041037830412-26

    Отправить запрос

    ×

    Всего один шаг ⬇ получите скидку!

    Как использовать код?
    Заказчик:
    1. Предоставьте Код и Номер коммерческого предложения.
    Менеджер:
    1. После подтверждения исправит итоговый счет с учетом скидки;
    2. Код автоматически аннулируется после использования.
    Внимание:
    *Код действует на любые товары Seallon.
    *Одноразовое использование, без ограничения количества.
    *Срок действия: до 31.12.2025